
December 2024
Portishead project: internal partitioning and plasterwork continue to reshape the new spaces of the house.

November 2024
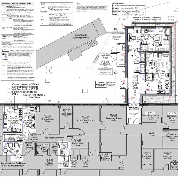
Tendering information issued for the addition of 2 treatment rooms and staff area refurbishments in the Gynae Department of the Royal United Hospital, Bath. Construction to commence in 2025.

October 2024
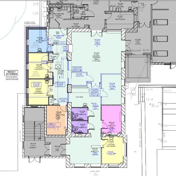
Tendering information issued for a new Same Day Emergency Care service at the Royal United Hospital, Bath incorporated into an expanded walk-in treatment area next to A&E. Construction to commence in 2025.

September 2024
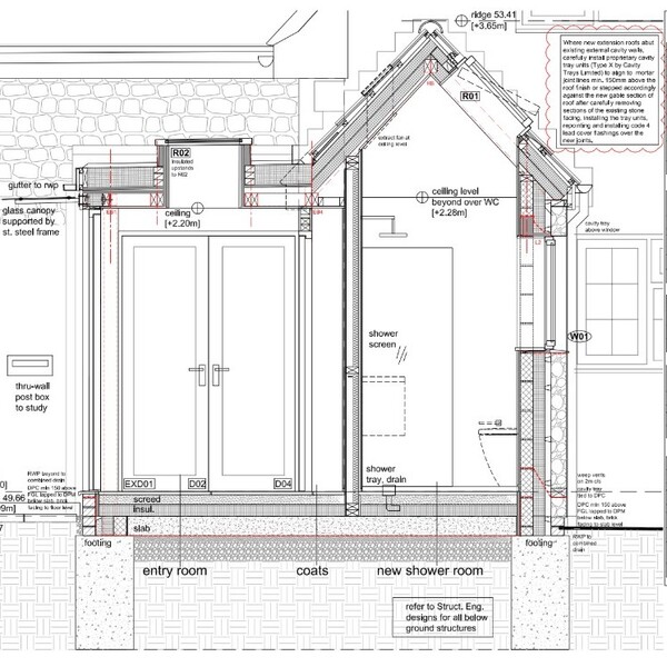
Building regulations approval granted for the construction of the entry and shower room extension at Fosse Cottage.

August 2024
Portishead project: new exterior openings formed to rear with all windows being replaced while 3 floors of internal partitions advancing.

July 2024
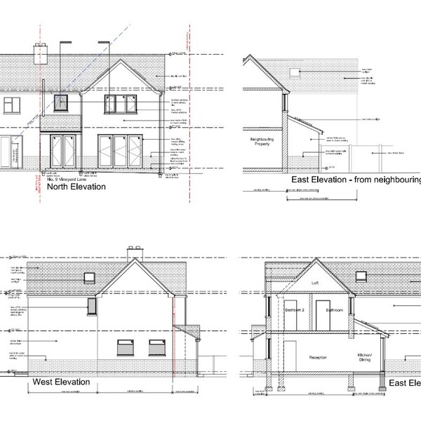
Planning permission granted for a 2-storey rear extension to a semi-detached dwelling near Wooten-under-Edge.

June 2024
Final phase of RUH Maternity Day Assessment Unit – Triage Area completed and handed over to the Bath Royal United Hospital Trust.

May 2024
At the Portishead house project, incremental removal of walls continues whilst new structural configurations are inserted, all to open the internal volumes of this house as envisaged.

April 2024
Delivered first of several Royal United Hospital (Bath) Theatres Anaesthetic Room upgrades within tightly controlled timescales to minimise theatre downtime.

March 2024
At the Portishead house site, steel work and demolitions to create the new internal atrium of the house in progress.

February 2024
Phase 2 of the Maternity Day Assessment Unit project at the RUH handed over.

January 2024
Groundworks for house refurbishment in Portishead starts on site.

December 2023
Refurbishment works completed to Dental Practice in Esher.

December 2023
First phase of the Maternity Day Assessment Unit project at the RUH handed over.

November 2023
Planning Permission granted for house extension at Fosse Lane, Batheaston.

October 2023
Phase 1 of the Maternity Day Assessment Unit project at the RUH starts on site.

September 2023
New extensions at Eagle Road in Bath completes.

August 2023
New extensions at a house in Perrymead, Bath, completes.

July 2023
Planning Permission granted for house extension in Woking.

June 2023
Works to Phase 1 in Saffron Walden starts on site.

May 2023
New inpatient ward refurbishment completes on site at the Royal United Hospital in Bath.

April 2023
Works to house extension at Eagle Rd.,Bath, underway on site.

March 2023
Planning Permission granted for house refurbishment and re-ordering in Portishead

February 2023
New inpatient ward refurbishment starts on site at the Royal United Hospital in Bath.